技術實力雄厚,生產團隊完善,歡迎您的光臨。
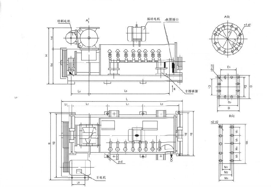
單軸粉塵加濕機由均勻供料、葉片輸料、混合機打加濕、振動係統四部分組成,配以電控和供水係統。整體固定在一個支架上,筒體...
技術完善高素質人員體係健全售後到位
專注生產和經營振動工程和環保設備
單軸粉塵加濕機由均勻供料、葉片輸料、混合機打加濕、振動係統四部分組成,配以電控和供水係統。整體固定在一個支架上,筒體由四組彈性元件支撐,通過激震裝置,使整機在運轉過程中,筒體高頻震動,筒壁高頻振動,筒壁與攪拌軸之間**保持一定的間隙,減小了運轉阻力,杜絕了悶機、堵轉現象,減小了停機清理時間,提高了工作效率。
售後服務及其他
1、產品保修一年,在保修期內,如出現質量問題,我廠負責修理,對於用戶操作疏忽產生的損壞,僅收材料費。
2、超過保修期的產品,如出現質量問題,我廠負責修理酌情收取工料費。
3、我廠負責免費調試,用戶指導及培訓操作人員。
4、如有特殊要求,請在訂貨時務必說明。
附單軸粉塵加濕機示意圖:

專注生產和經營振動工程和環保設備
我公司產品選用高品質原材料
注重口碑,做更好的產品
產品的每一個製作步驟
都有專人把控。
產品經得起檢測機構推敲
保證每個產品的質量。
公司擁有齊全的生產設備
達數十台設備。
有經驗豐富的技術人才若幹人
進行產品升級及研發。
公司擁有健全的售後服務體係
保證售後問題能立即處理。
專注生產和經營振動工程和環保設備
專注生產和經營振動工程和環保設備
專注生產和經營振動工程和環保設備